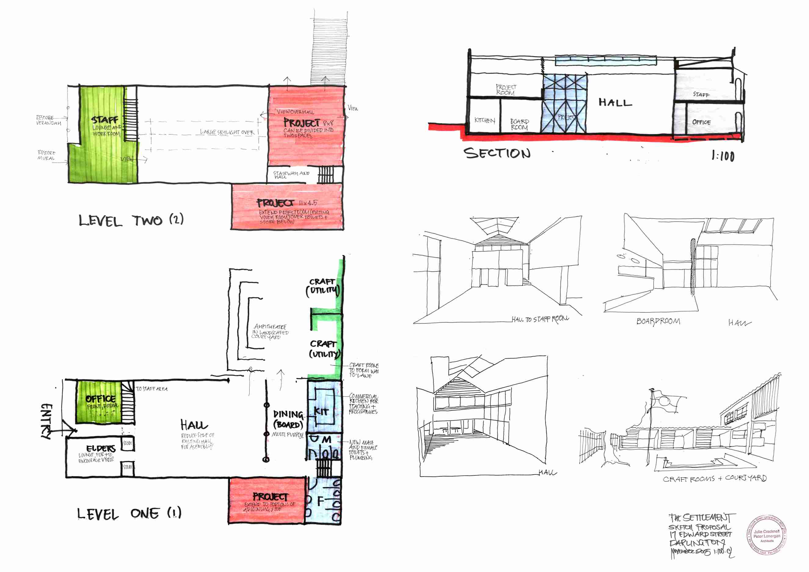
Sketch Plans of Settlement Building Changes 20 July 2007
Settlement sketch 1.jpg
—
JPEG image,
157 kB (161094 bytes)

